Language
日本語 English 简体中文 繁體中文 한국어

Rooms

Rooms

Currently displayed page
UMEDAHOLIC HOTEL TOP > Guest Rooms
> Universal Double

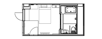
Universal Double

Barrier-free room located on the second floor.
The interior has no steps, so elderly people and wheelchair users can enjoy a comfortable stay.
The unit room, which combines a bathroom and toilet, has a sliding door.
You can also store suitcases and other items in the space under the bed.

Basic information
Size 20.1㎡
Bed width 160cm
remarks All rooms are non-smoking

Common facilities for all guest rooms

TV / Free high-speed internet (Wi-Fi) / Refrigerator / Electric kettle / Telephone / Safe / Hair dryer / Hair iron / Under-bed storage space / Pillowside outlet / Hit's (unlimited YouTube viewing) / Toilet with flushing function / Independent air conditioning

Amenities

Guest room installation
Bath towels, face towels, bath mats, shampoo, conditioner, body soap, hand and face soap, nightwear, slippers, tissues

Amenity buffet (1st floor front desk)
Body towel / cleanser / facial cleanser / lotion / lotion / face mask / cotton set / hairbrush / razor / shaving cream / toothbrush and toothpaste / coffee / creamy powder / sugar / stirrer / green tea / rooibos tea / apple tea / Darjeeling tea / Earl Grey tea / bath salts (additional charge)

Rental equipment (free)
*Limited quantity, first come first served
*Pick-up is done at the front desk on the 1st floor.

Air purifier / Humidifier / Charger / Extension cord / Iron / Ironing board / Ice bucket / Nail clippers / Trouser press / Shoehorn / Wheelchair / Umbrella

Check-in and check-out

Check-in: 15:00 / Check-out: 11:00

Credit card

VISA / JCB / Mastercard / AMEX / UC / DC / NICOS / Diners Club / UnionPay are accepted. For other cards, please contact the hotel.

Electronic money

IC Transit Cards (Suica, PASMO, ICOCA, etc.) / Rakuten Edy / WAON / iD / nanaco / QUICPay

Cancel

In accordance with our hotel's accommodation terms and conditions, we charge a cancellation fee of 20% of the basic accommodation fee if you cancel the day before, 80% if you cancel on the day, and 100% if you don't show up. However, cancellation policies may differ depending on the plan. Please check the details of each plan.

Facilities and Services

Complimentary Wi-Fi

Complimentary Wi-Fi

Enjoy free Wi-Fi throughout the entire building.

YouTube

YouTube

You can watch YouTube on your TV screen. Casting (mirroring) with your smartphone is also possible.

Mineral water service

Mineral water service

One bottle per person is provided in the room.

Under-bed storage space

Under-bed storage space

Large luggage such as suitcases can be stored, allowing you to use the room more spaciously.

Bedside outlet

Bedside outlet

There is a USB port and power outlet next to the pillow.

independent wash basin

independent wash basin

The bath, toilet, and sink are all completely separate, allowing you to use each space functionally.

Spacious separate bathroom and bathtub

Spacious separate bathroom

The bathroom has a separate bathtub and washing area. The large bathtub can accommodate two people.

Amenity buffet

Amenity buffet

There is also a wide selection of skin care items, including the popular face pack. Click here for details.
*The image may differ from the actual product.

Self Check-in Kiosk

Self Check-in Kiosk

We accept credit cards and advance payments, allowing for contactless and smart check-in.

Room List

Call us to book
+81-6-4792-8380